Op zeer commerciële lokatie gelegen winkel/kantoorruimte. gelegen winkel of kantoorruimte.
Handelsgelijkvloers
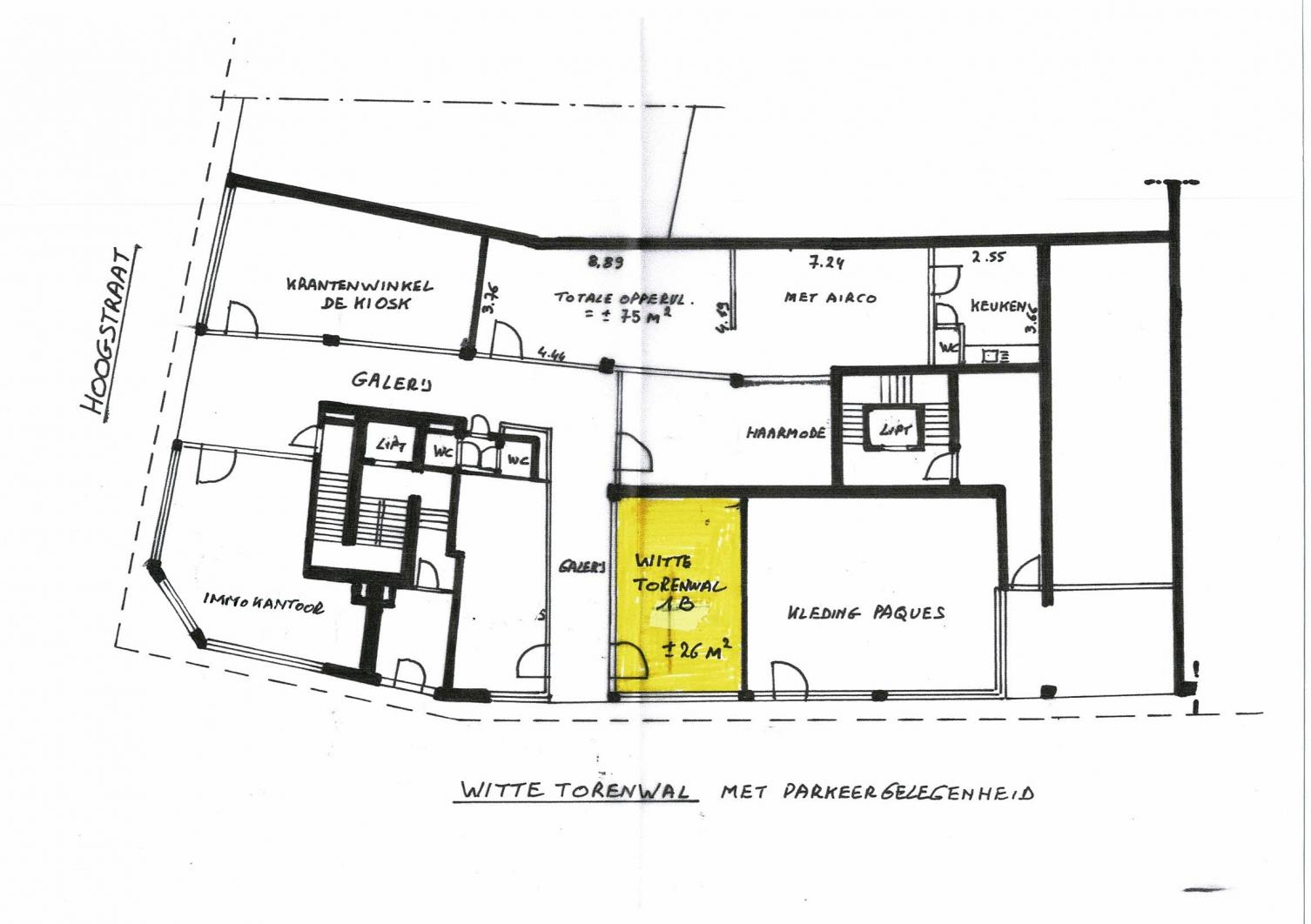
Witte Torenwal 1/B, 3960 Bree
Ref: spir45


26m2 woonopp.
Omschrijving
Deze handelsruimte is gelegen op een zeer goede commerciële lokatie met ruime parkeergelegenheid in de buurt, ook kort parkeren.
De ruimte van ca 26m² is geschikt voor zowel een winkel als een kantoorruimte.
Er is een gemeenschappelijk toilet in de galerij.
Voor een afspraak bel 0477 35 20 79.
De ruimte van ca 26m² is geschikt voor zowel een winkel als een kantoorruimte.
Er is een gemeenschappelijk toilet in de galerij.
Voor een afspraak bel 0477 35 20 79.
Ruimtelijke ordening
Effectief overstromingsgevoelig | Nee |
Mogelijk overstromingsgevoelig | Nee |
Afgebakend overstromingsgebied | Nee |
Afgebakende oeverzone | Nee |
Risicozone voor overstromingen | Nee |
Comfort
Verwarming | Stookolie |
Verwarmingsketel | Gemeenschappelijk |
Schrijnwerk buiten | Aluminium |
Beglazing | Enkel glas |
Financiële info
Prijs | Info op kantoor |
Overige Info
Vrij op | overeen te komen |
Bebouwing
Woonoppervlakte | 26 m² |
Renovatieplicht | Niet ingegeven |
Alle aanbiedingen gelden onder voorbehoud van fouten, eerdere verkoop, prijswijzigingen of vergetelheid.